Geländer richtig planen:

Die wichtigsten Richtlinien, Vorschriften und innovativen Arbeitshilfen für Metallbauer

Geländer und Umwehrungen dienen dazu, begehbare Flächen mit Absturzmöglichkeiten effektiv gegen einen Absturz abzusichern. Damit sind sie von großer Bedeutung für die Sicherheit in unserer Gesellschaft. Um diese Sicherheit zu gewährleisten, unterliegen sowohl die Planung, die Fertigung als auch die Montage von Umwehrungen gewissen Vorschriften und Richtlinien, die es einzuhalten gilt.

Relevante Vorschriften und Richtlinien für Geländer:

Da es sich um sicherheitsrelevante Bestandteile von Bauwerken handelt, sollte vor dem Bau eines Geländers alles sehr genau im Detail durchdacht und gründlich geplant werden. Metallbauer sind als ausführende Stelle auch stets einem Haftungsrisiko ausgesetzt. Um ein vorschriftsmäßig sicheres Geländer zu gestalten, stellt der Bundesverband Metall Richtlinien und Regelwerke zur Verfügung. Die BVM Geländer-Richtlinie verschafft einen hilfreichen Überblick.

Ein Überblick:

DIN 18065

Die DIN 18065 beinhaltet die wichtigsten Vorschriften in Bezug auf Konstruktion, Sicherheit und Komfort von Gebäudetreppen und ist bei der Geländerplanung von großer Bedeutung. Sie ist in 15 von 16 Bundesländern bauaufsichtlich eingeführt, d. h. sie ist Bestandteil der jeweiligen Verwaltungsvorschrift Technische Baubestimmungen (VVTB).

DIN EN 1991

(Eurocode 1)

Die DIN EN 1991-1-1/NA, Tab. 6.12DE listet die anzusetzenden charakteristischen horizontalen Nutzlasten in und entgegen Absturzrichtung auf Brüstungen und Geländer auf. Je nach Einbauort und Nutzungskategorie beträgt diese 0,5 kN/m, 1 kN/m oder 2 kN/m in Absturzrichtung. Bei Geländern, welche im Außenbereich angebracht werden ist gegebenenfalls eine Windlast nach DIN EN 1991-1-4/NA zu berücksichtigen.

Ein Überblick der anzusetzenden horizontalen Nutzlasten ist in der BVM Geländer-Richtlinie enthalten.

Erschweren
des Überkletterns

In der DIN 18065 wurden außerdem spezielle Sicherheitsmaßnahmen festgelegt, um ein Überklettern usw. durch Kleinkinder zu erschweren. Vertikal verlaufende Geländerstäbe dürfen einen maximalen Abstand von 12 cm aufweisen. 

Zudem kann ein Überklettern des Geländers durch einen um mindestens 15 cm nach innen gezogenen Handlauf, senkrecht verlaufende Stäbe oder einer Scheibe im unteren Bereich des Geländers von einer Höhe von mindestens 70 cm verhindert werden.

Der Handlauf

Die DIN 18065 schreibt vor, dass Handläufe in einer Höhe von 80 cm bis 115 cm anzubringen sind. Genauere Angaben sind ggf. in den Landesbauordnungen oder weiteren Verordnungen und Richtlinien (Arbeitsstättenverordnung, Schulbaurichtlinie, … ) enthalten. Der seitliche Abstand zur Wand oder zu weiteren Geländerteilen muss dabei mindestens 5 cm betragen. Zudem sollte die Handlaufbreite gut umgreifbar zwischen 2,5 cm und 6 cm breit sein. 

Durch die digitale Arbeitshilfe Tabellarische Dimensionierung von Geländern wird der Handlaufquerschnitt bemessen. Die Bemessung erfolgt nach DIN EN 1991-1-1/NA und die DIN EN 1993-1.

Im Online Statik Tool MetallStat können Sie mit ein paar wenigen Eingaben den Handlauf berechnen.

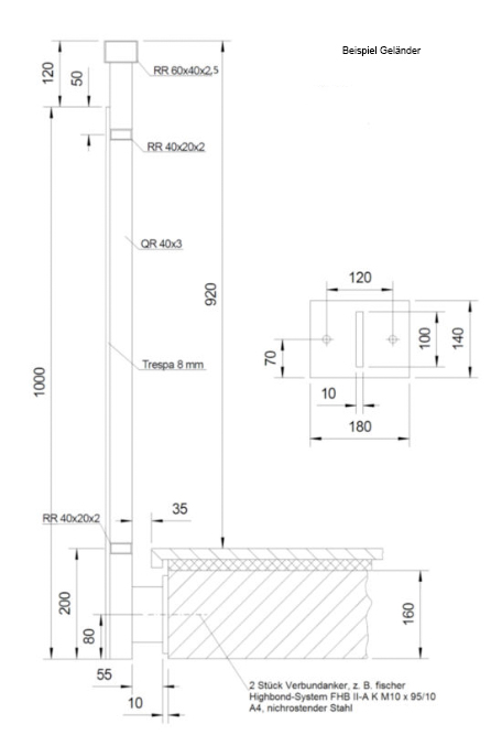
Dimensionierung von Schwertern

Schwerter, als tragende Elemente von Geländern, unterliegen spezifischen Anforderungen, die durch geltende Normen und Vorschriften, wie die DIN EN 1991-1-1/NA und die DIN EN 1993-1, geregelt sind. Die Dimensionierung muss sicherstellen, dass die Schwerter den anzusetzenden Horizontallasten entsprechend ihrer Nutzungskategorie und den geometrischen Gegebenheiten des Geländers standhalten. Hierbei sind Faktoren wie Materialeigenschaften, Querschnittswerte und Befestigungsdetails präzise zu berücksichtigen, um die statische und strukturelle Sicherheit zu gewährleisten. Die digitale Arbeitshilfe Tabellarische Dimensionierung von Geländern unterstützt Metallbauer bspw. bei der Dimensionierung von Schwertern, indem sie Querschnittswerte und Belastungsparameter bereitstellt.

Im Online Statik Tool MetallStat können Sie mit ein paar wenigen Eingaben die Dimensionierung von Schwertern vornehmen.

Berechnung von lokalen Anschlusssituationen an Wandungen von Hohlprofilen

Bei der Verbindung von Schwertern oder Pfosten mit Hohlprofilen ist die lokale Beanspruchung der Wandungen ein kritischer Aspekt, der sorgfältig berücksichtigt werden muss. Die Berechnungen erfolgen unter Berücksichtigung der maßgeblichen Normen, wie beispielsweise der DIN EN 1993-1-8, um sicherzustellen, dass die Anschlüsse den geforderten Belastungen standhalten und die strukturelle Stabilität der Hohlprofile nicht gefährdet wird. 

Die BVM Geländer-Richtlinie, sowie die digitale Arbeitshilfe Tabellarische Dimensionierung von Geländern bieten hierbei wertvolle Unterstützung, um die Anschlüsse fachgerecht und normkonform auszulegen. 

Belastungstest:
Lokale Beanspruchung zwischen Schwert und Pfosten

Ein zentrales Problem in der Verbindungstechnik von Geländern stellt die lokale Beanspruchung an den Verbindungsstellen zwischen Schwert und Pfosten dar. Insbesondere bei unterschiedlichen Rohrprofilen – wie Quadratrohr, Rechteckrohr oder Rundrohr – können spezifische Versagensmechanismen auftreten. Zu den häufigsten zählen das sogenannte „Durchstanzen“.

Um diese Herausforderungen besser zu verstehen, führte die Schlosserei und Stahlbau Böhm aus Stuttgart einen Belastungstest durch.

Der Belastungstest verdeutlicht anschaulich, wie das Bruchbild beim Durchstanzen aussieht. Dieser Versagensmechanismus tritt auf, wenn die Belastung so hoch ist, dass das Material um die Verbindungspunkte nachgibt und durchbrochen wird. Dies ist besonders kritisch, da es die strukturelle Sicherheit eines Geländers beeinträchtigen kann.

Zur Vorbeugung solcher Schäden bietet die Tabellarische Dimensionierung von Geländern eine wertvolle Unterstützung. Mit diesem Tool können Konstrukteure die Berechnung des Durchstanzens durchführen und so die Tragfähigkeit der Verbindungen optimieren. Die Berücksichtigung der spezifischen Belastungsgrenzen und Materialeigenschaften ermöglicht eine zuverlässige und sichere Ausführung von Geländerbauteilen.

Video des Belastungstests
Teil 1

Sie sehen gerade einen Platzhalterinhalt von Vimeo. Um auf den eigentlichen Inhalt zuzugreifen, klicken Sie auf die Schaltfläche unten. Bitte beachten Sie, dass dabei Daten an Drittanbieter weitergegeben werden.

Mehr Informationen

Video des Belastungstests
Teil 2

Sie sehen gerade einen Platzhalterinhalt von Vimeo. Um auf den eigentlichen Inhalt zuzugreifen, klicken Sie auf die Schaltfläche unten. Bitte beachten Sie, dass dabei Daten an Drittanbieter weitergegeben werden.

Mehr Informationen

Landesbauordnung (LBO)

Baurecht ist Landesrecht. Deshalb legt jedes Bundesland seine eigenen Vorschriften und Richtlinien in der landesspezifischen Landesbauordnung fest. Die meisten Landesbauordnungen schreiben eine Geländerhöhe von mindestens 90 cm bei einer Absturzhöhe ≤ 12 m und eine Geländerhöhe von 110 cm bei einer Absturzhöhe > 12 m vor. Zudem werden von einigen Landesbauordnungen gesondert weitere Abstandsmaße von und zu Geländerteilen oder Zwischenräumen verlangt.

Eine Liste aller Landesbauordnungen zum Nachschlagen finden Sie hier.

Jeder Betrieb sollte die im heimischen Bundesland geltende Landesbauordnung kennen, jedoch kommt es regelmäßig vor, dass Metallbaubetriebe Projekte in anderen Bundesländern umsetzen. In diesem Fall ist es unabdingbar, die Landesbauordnung des jeweiligen Bundeslandes zu prüfen, da es Unterschiede zwischen den LBOs gibt.

Sonderbauvorschriften

Die DGUV Information 208-005 (bisher: BGI/GUV-I 561) ist eine Richtlinie der deutschen gesetzlichen Unfallversicherung und orientiert sich im Allgemeinen an der DIN 18065. Die Regeln beachten auch eine nicht beabsichtigte Nutzung der Geländer, z.B. dass sich ein Kind an das Geländer hängt oder dass Personen sich auf das Geländer setzen.

Ein Auszug der Normen

Norm

Regelung

LBOs

Verzeichnis der Landesbauordnung

VV TBs

(Verwaltungsvorschrift Technische Baubestimmungen)

Die VV TB gibt vor, welche technischen Anforderungen an Bauprodukte und Bauweisen erfüllt sein müssen, um den gesetzlichen Anforderungen an den Brandschutz, die Wärmedämmung, den Schallschutz und andere bautechnische Belange gerecht zu werden. Diese Anforderungen sind für alle Bundesländer in Deutschland verbindlich und gelten für Neubauten sowie für Umbauten und Sanierungen bestehender Gebäude.

DIN 18065


Regelt insbesondere die Höhe von Umwehrungen von Gebäudetreppen.

Höhe: min 90 cm
Höhe Handlauf: 80 – 115 cm
Handlauf Breite: 2,5 – 6 cm…

DIN 18008-4

(Glas im Bauwesen)

Diese Norm gilt für Vertikalverglasungen und zur Angriffseite geneigte Horizontalverglasungen, die Personen auf Verkehrsflächen gegen seitlichen Absturz sichern.

Die DIN 18008-4 beinhaltet mit verschiedenen Aspekten die Konstruktion von Glasgeländern, einschließlich der Wahl der Glasart, der Mindestglasdicke, der Befestigungsmethoden, der Belastungsgrenzen und der Konstruktionsdetails. Sie enthält auch Anleitungen zur Berechnung der Tragfähigkeit und Soßsicherheit von Glasgeländern.

DIN 18040

(Barrierefreies Planen, Bauen und Wohnen)

Beidseitig von Treppenläufen und Zwischenpodesten müssen Handläufe einen sicheren Halt bei der Benutzung der Treppe bieten.

Das wird erreicht, wenn:

⎯ sie in einer Höhe von 85 cm bis 90 cm angeordnet sind, gemessen lotrecht von Oberkante Handlauf zu Stufenvorderkante oder OFF Treppenpodest/Zwischenpodest;

⎯ sie an Treppenaugen und Zwischenpodesten nicht unterbrochen werden;

⎯ z. B. rundem oder ovalem Querschnitt des Handlaufs und einem Durchmesser von 3 cm bis 4,5 cm;

⎯ Halterungen, die an der Unterseite angeordnet sind;

⎯ abgerundetem Abschluss von frei in den Raum ragenden Handlaufenden z. B. nach unten oder zu einer Wandseite.

DIN EN 1090 – 2

Technische Regeln für die Ausführung von Stahltragwerken

DIN EN 1090 – 3

Technische Regeln für die Ausführung von Aluminiumtragwerken

ETB-Richtline

“Bauteile gegen Absturz sichern”

Regelt im Wesentlichen die Vorgaben zur Ermittlung der Stoßfestigkeit von Geländerfüllungen.

DIN EN 1991

(Eurocode 1)

Einwirkungen auf Tragwerke (z.b. Horizontale Nutzlasten und Wind)

DIN EN 1993

(Eurocode 3)

Bemessung und Konstruktion von Stahlbauten

DIN EN 1999

(Eurocode 9)

Bemessung und Konstruktion von Aluminiumtragwerken

DGUV Information 208-005

(bisher: BGI/GUV-I 561)

Unfallsicherung [Quelle]

– Geländer muss lotrecht über der Stufenvorderkante mindestens 100 cm betragen

– Eine Horizontalkraft von mindestens 1 kN/m aufnehmen können. Für Zugänge zu maschinellen Anlagen, die nur zu Wartungs- die Inspektionszwecke genutzt werden,

– Die Öffnungen zwischen den Füllstäben sollten maximal 18 cm betragen

MetallStat

Das Online-Statik Programm MetallStat wird inzwischen von vielen Metallbauern und auch einigen Ingenieuren für häufig wiederkehrende statische Berechnungen im Metall- und Stahlbau eingesetzt. Die Berechnungen sind u. a. in Ausführungsstatiken integrierbar, dienen aber in erster Linie zur Vordimensionierung in der Angebotsphase. 

Tabellarische Dimensionierungen von Geländern

Tabellarische Dimensionierung von Geländern

Unsere innovative Arbeitshilfe wurde speziell für fachkompetente Anwender entwickelt, um die Planung und Dimensionierung von Geländern und Umwehrungen effizienter zu gestalten. Pfostenabstände, unter Berücksichtigung der unterschiedlichen Holmlasten, Dimensionierung von Schwertern und Anschlussschweißnähten sowie die Berechnung lokaler Anschlusssituationen an Wandungen von Hohlprofilen sind klar definiert, wodurch eine fachgerechte Ausführung sichergestellt wird.

Kompakte Kurzfassung / Fazit

Bei Umwehrungen und Absturzsicherungen geht es vor allem um eins: Sicherheit. Eine nicht vorschriftsmäßige Ausführung kann im Fall der Fälle lebensgefährliche Folgen haben. Die zahlreichen Vorschriften, Richtlinien und Bauordnungen dienen vor allem der Sicherheit und erfüllen somit eine wichtige Aufgabe. In diesem Artikel hat der Bundesverband Metall die wichtigsten Regelwerke vorgestellt. Hier finden Sie ein ausführliches Rechenbeispiel. Der Bundesverband Metall steht Metallhandwerkern mit einer Reihe von Services zur Seite.